Безплатно! Онлайн събитие: Научи тънкостите на добрия промпт за изображения Регистрация тук.
Въпрос към урок: Решение на задачата: Създаване на сложна скица
от курс: Проектиране със Solidworks
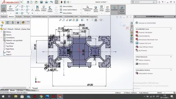
Как да премахна запълването на чертежа
Здравейте ,искам да попиам защо така ми стой запълнен чартежа и къде мога да го коригирам ,за да излгежда като ваши.
ж

Здравейте. Стои ви запълнен тъй като е готов за така нареченото рязане или надграждане ( extruded boss/base ). Когато чертежа ви е затворен значи е правилен и е възможно манипулирането му в дебелината или изрязването.За да го коригирате и да не е оцветен излезте от skecha горе в ляво exit sketch без да го extrud-вате.
Вашият отговор
Запиши се в Аула
Ако вече имаш регистрация влез оттук