Каква е причината archicad да не запазва същото , което му е зададено в layout?
Здравейте, имам проблем със запазването на файл с Layout.. Опитах 100 неща но не става. Не е по темата на урока но не знам къде да го задам. Опитвам се да запазя файл с референция. искам и двете да се виждат на запазения Pdf. Това успявам да направя но като запазя файла с референцията и отворя готовия pdf не виждам същото, което съм искала да запазя. Позвам renovation filter и всичките етапи се наспгват в референцията. не мога да разбера как да го оправя и наистина да се запазва това, което се вижда на layout.
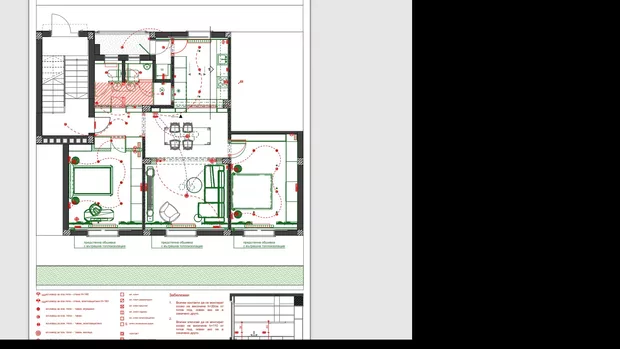
това искам
това получавам

Здравейте, Yana, проблемът може да е свързан с настройките на филтрите за реновация в ArchiCAD, които може да не са правилно приложени към PDF, когато се генерира.
Проблемът, който описвате, изглежда е свързан с филтрите за реновация в ArchiCAD. Филтрите за реновация в ArchiCAD се използват за управление на видимостта на елементите, в зависимост от фазата на проекта. Вероятно вие сте задали филтър за реновация върху вашия модел, който прави определени елементи видими или невидими.
Това би могло да е, защото филтърът за реновация не е приложен правилно върху PDF изхода.
Ето стъпка по стъпка как да проверите и коригирате това:
- Отворете Layout, където сте задали референцията.
- Изберете референцията и отидете до "Settings".
- В "Settings", проверете дали "Renovation Status" е зададен според очаквания ви филтър. Това ще управлява как референцията се показва.
- Ако "Renovation Status" не е правилен, го променете на правилния и запазете промените.
- След това опитайте отново да генерирате PDF файла. Той би трябвало да отразява същото, което виждате в layout с променения филтър за реновация.