Безплатно! Онлайн събитие: От претоварване с информация до фокус и структура с Gemini & NotebookLM Регистрация тук.
Въпрос към урок: Позициониране на обекти в интериор с рисуване и етикети
от курс: AI за недизайнери: създавай професионални изображения с лекота
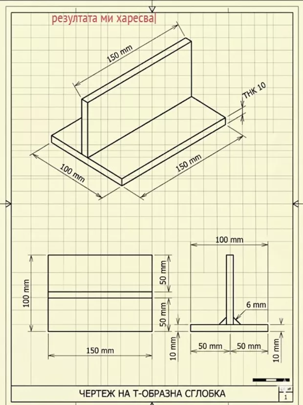
Как да направя чертеж на детайл по снимка?
Качих снимка на детайл. Написах му размерите. После поисках да ми направи чертеж на детайла и 3D модел от меден материал.
Здравейте, Любомир,
Как да подходите в този урок
- Качете снимката и първо поискайте чисто позициониране и разчитане на формата, а не директно чертеж и 3D модел.
- Добавете размерите като ясни етикети върху изображението или ги опишете подредено: дължина, ширина, височина, диаметри, отвори.
- Подайте по-точен prompt, например:
- създай технически line drawing по снимката
- покажи front view, side view, top view
- добави всички размери в mm
- материал: мед
- създай и 3D render, не инженерски CAD модел
- Ако резултатът е неточен, маркирайте с рисуване кои ръбове, отвори или фаски са важни.
- Имайте предвид: AI може да направи визуален чертеж и 3D визуализация, но не винаги дава точен производствен чертеж.
Най-добре е да разделите задачата на 2 части: - първо чертеж - после 3D визуализация от меден материал
Благодаря за последователното напътствие.
Вашият отговор
Запиши се в Аула
Ако вече имаш регистрация влез оттук


