Как се определя позицията на таблицата Weldment Cut List
Здравейте колеги искам да добавя полезна информация при определяне позицията на таблицата в Property Manager-a на Weldment Cut List.

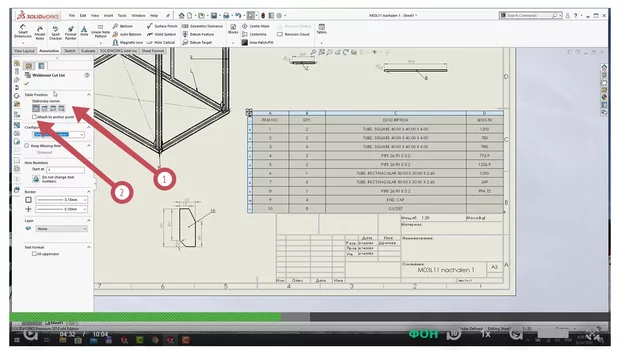
За да работи позициoнирането на съответния ъгъл на таблицата- Stationary corner - 1 при активирана опция - Attach to anchor point -2, трябва предварително да се избере точка в полето на чертежа, която да се дефинира като Anchor point.
Десен бутон в полето на чертежа =>Edit Sheet Format=>Избирате точка от рамката или си поставяте една по своя преценка някъде в полето на листа, чрез инструмента Point на менюто Sketch => десен бутон върху точката и избирате от появилото се меню Set As Anchor Point за Weldments Cut List. => Излизате от Edit Sheet Format
Сега вече връх на таблицата се закача за тази точка, съгласно избраният от вас начин от пиктограмите под Stationary corner