Безплатно! Онлайн събитие: Научи тънкостите на добрия промпт за изображения Регистрация тук.
Въпрос към урок: Работа в един модел с множество изгледи и таблици към него
от курс: Основи на BIM и Revit
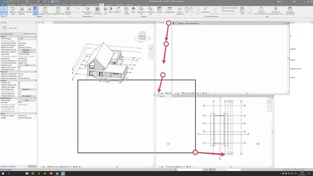
Как да отворя няколко прозореца?
Как да отворя няколко прозореца едновремено(план, разрез, 3д)?
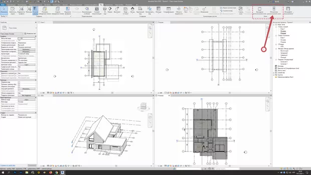
Здравейте, тов може да стане от Меню Вид > Мозаечно разположение на прозорците.
А да се върнете към нормален изглед от Каскадно разположение на прозорците.
Удобно е също да хванете и да влачете желания прозорец докато се появи циня рамка на желаната позиция.

Вашият отговор
Запиши се в Аула
Ако вече имаш регистрация влез оттук