Как да Добавя фамилия в проект
Здравейте, при мен възниква следния проблем. На току-що инсталиран Revit 2021 при избор на команда за изчертаване на греда "Beam" е активен само посочения профил

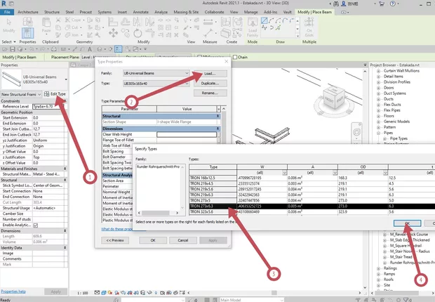
Когато опитам да заредя нова фамилия от Insert/Load Family и избера съответния профил

излиза следното съобщение:

Ако опитам да вмъкна този файл, който е в библиотеката със файлове в Revit, като го създам като нова фамилия от File/New/Family






Къде греша и не успявам да вмъкна сеченията като нова фамилия, независимо дали избирам едно или две от листа?
Въпреки това, отбелязаните по-долу са вмъкнати в проекта:

Но не мога да ги заредя като отделна фамилия нито да ги присъединя към активната такава:




И след избор на конкретно сечение от файла са появява:

Типовете сечения са обединени във фамилии, но как става добавянето на тези фамилии в съответния файл, така че да бъдат активни при задаване на команда за изчертаване на греда или колона, съответно?
Ако съм пропуснала нещо във въпроса: [email protected]
Благодаря предварително!
Бъркате категорията на елементите. Ако искате да заредите допълнителни типове греди, то от библиотеките трябва да се навигирате до папакта Structural Framing. От там вече да заредите желано сечение и вид греда. Фамилиите тип "Profile" се позлват за друга цел - могат да се позлват за профили за улуци, профили за окачена фасада, профили за Wall Sweeps и др.

Фамилиите пък за колони се зареждат от папакта "Structural Columns" Фамилиите са различни, имайте предвид и са важни категориите на елементите.
Благодаря за отговора. Създадох фамилия за колони от Structural Columns, въведох сечението и различните типове към нея (профили HEA в случая), но отново имам въпрос. Създавайки сечението и задавайки му команда "Extrusion" то вече е с фиксирана височина (да речем в случая с колона) и при вмъкването в проекта идва с нея - фиксирана. Има ли параметър, който се задава още при екструзията като променлив, за да може в последствие при изчертаване от командата Column то да е с различна височина в проекта (т.е. да имам колони с височина 2750 и 3500, примерно)? В момента, въпреки че ги задавам от точка до точка след изчертаването се получава целия габарит, зададен при създаването на фамилията.
Колоните по височина се контролират чрез параметрите в палета с настройки, подобно на стените. Задавате от кое до кое ниво да стигнат и евентуално какви отмествания по височина спрямо нивата да имат.