Как да накараме програмата да изписва информацията винаги отвън на стената?
След като модифицираме етикета за прозорец и с него изкарваме размери по Ш и В, може ли да накараме програмата да изписва информацията винаги отвън на стената?
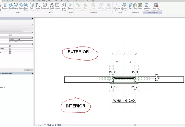
Здравейте, без графична информация ми е трудно да Ви отговоря. Има значение как изглежда вашия етикет за прозорец, за това Ви моля да направите една снимка на екрана Ви, за да добия представа. Ако трябва да стрелям в тъмното, мога да ви кажа, че поначало Ревит постява етикета от външната страна на прозореца. Т.е. самата фамилия за прозорец има "вън" и "вътре". Ако маркирате даден прозорец и изберете Edit Family след което влезете в подов план на дадения прозорец - може да видите кое е вън и кое вътре. И съответно е важно когато поставяте проозрец в стена той да бъде правилно ориентиран. Ориентацията на прозореца е водещата в случая-не на стената.

