Въпрос към урок: Бързи справки по критерии в атрибутите на блоковете
от курс: AutoCAD Формула II
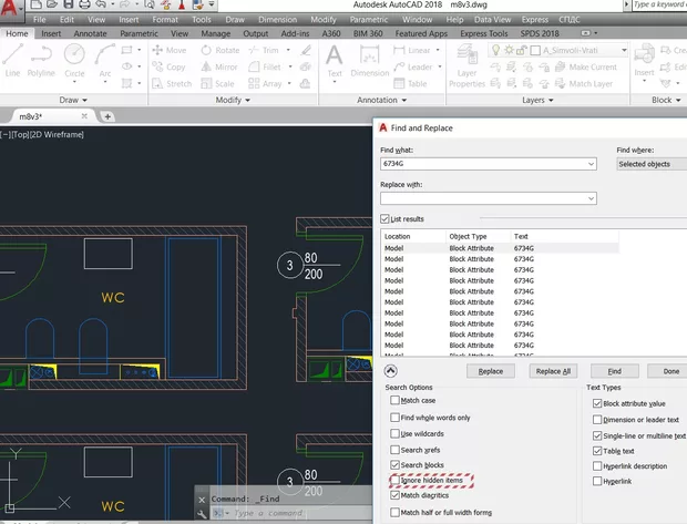
Find не търси в атрибути с invisible=Yes
Трябва да се отбележи, че find не търси в скрити атрибути.
Това уточнение е важно!
Току що пробвах това на версия 2018 и всъщност ТЪРСИ. Може би, защото е по-нова версия, но като махна отметката на "Ignore hidden items" (снимка) си търси и в атрибути с invisible=Yes. Използвал съм файла към упражнението.

Вашият отговор
Запиши се в Аула
Ако вече имаш регистрация влез оттук