Какво трябва да направя , за да мога отново да меря дължината на polyline и площта оградена с нея в "Properties"? От известно време при мен тази опция изчезна, а е много необходима.
Здравейте Гергана. "No selection"! Не сте селектирали обект. Area и Length са в раздел "Geometry". Той е активен само когато сте селектирали обект - Polyline. Пробвайте да начертаете няколко затворени фигури, маркирате обект, Properties, Geometry. Успех!
Благодаря, Николай. Наистина съм прикачила неподходящо изображение.
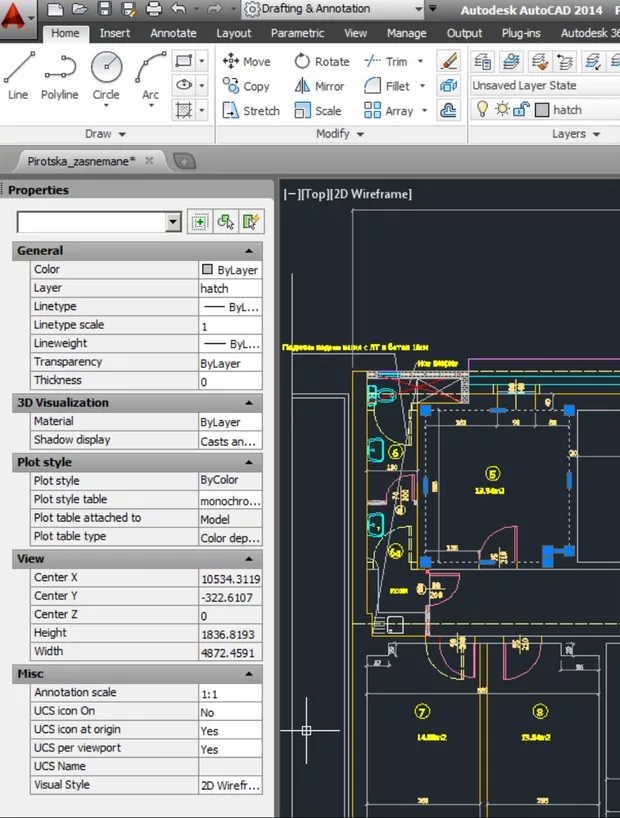
Ето това виждам като селектирам полилинията.
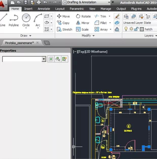
А това, когато натисна средното бутонче горе"select objects". Предполагам, че съм променила някакви настройки несъзнателно...или поне се надявам да е така.

Здравей, Гергана.
Това е един bug в AutoCAD.
Тази тема тук:
Защо Properties палетата не отчита селектирания обект?
ще отговори на въпроса ти как може да се справиш със създалата се ситуация.
Дано и при теб не се стигне до преинсталиране, както при Димитър.
Благодаря, Краси, за бързия и подробен отговор. За съжаление не се получи нито с настройките, нито с "repair" на Autodesk и AutoCAD. Явно ще се отиде на крайния вариант с преинсталиране на програмата :((
Ами да, това е варианта. Краен, но щом си пробвала всичко, което било описано в темата, се стига и до този последен вариант.
