Прескочи към основното съдържание Прескочи към навигацията
AutoCAD Формула AutoCAD

Здравей.

Има ли възможност жидеото да бъде качено отново?

Лек ден.

Здравей! По някога и при мен се случва да прекъсва. Мисля че е от интернет връзката. Когато затворя страницата и я отворя отново проблемът в по - вечето случаи се решава. 

Здравейте! Има ли възможност при налагането на дименсия за линия, то пред стойноста на дименсията да излиза автоматично знака за диаметър?

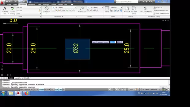
Екранна снимка от форума На снимката е показано как трябва да бъде с знака за диаметър пред стойноста, но до сега все ми се налага да използвам командата DDEDIT и под-опцията Symbol от менюто. Благодаря

С ddedit просто пренаписвате дименсията, но ако трябва да поставите символът пред няколко дименсии, ще трябва толкова пъти да изпълните командата. За сметка на това можете да селектирате дименсията и в "properties" в раздела "primary units" да напишете символа в полето срещу "dim prefix" (за символ "фи" трябва да напишете %%c). По аналогичен начин можете да попълните и полето "dim suffix" - например с "m", "cm" или "mm", ако желаете. В този си вид дименсията може да я ползвате, за да "мачвате" (Match Properties - MA) други дименсии, които трябва да придобият същия формат.

А за да излиза символът по подразбиране при създаване на нова дименсия, трябва да се редактира дименсионния стил (или да се създаде нов и да се направи текущ), като в TAB-а "primary units" се попълва полето срещу "prefix".

Благодаря Теодор за точния отговор, много работа ми спести. Отново Благодаря!


Вашият отговор

Запиши се в Аула

или
Вашият имейл е защитен при нас.