Защо в Layer-a не се виждат слоевете на Multileader и на оразмерителните линии?
Здравейте, Работя на версия 2015. Като отворя свалените два файла към урок 5 "използване на Multileader", в моделното пространство се виждат оразмерителните линии, както и multileader, но в Layer-a не се виждат. Не съм сменяла слоевете, така че не са в слой Defpoints. Благодаря предварително.
Здравей, не се виждат защото са анотативни. За да се виждат трябва мащаба на Viewport - a да бъде същия като мащаба на анотативния обект.
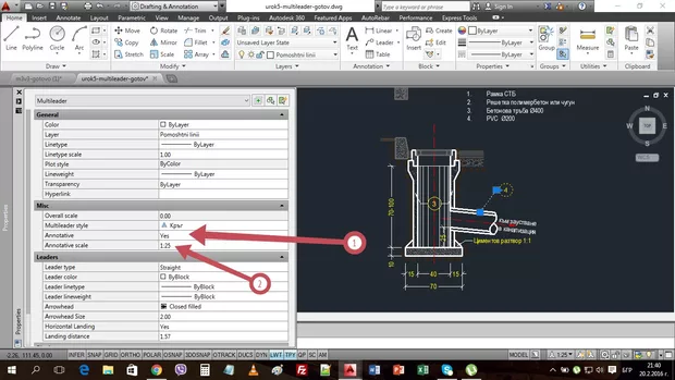
На снимка 1 позиция 1 ясно се вижда че обекта multileader e анотативен на позиция 2 съм показал и единия от записаните анотативни мащаби на обекта - 1:25.

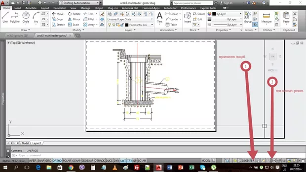
Ако мащаба на viewport - a e 1:20 ( или просто прозиволен ) и този мащаб не е вписан в дадения анотативен обект следва обекта да не се вижда - снимка 2.

Ако обаче за мащаб на viewport - a се избере 1:25 ( за него съ сигурност знаем че е вписан за анотативния обект, следва обекта да се вижда.

Има и още една подробност, може обекта да няма вписан 1:20, но да се вижда в Layout - a, това при условие че е пуснат режима Annotative visibility : Show annotative object for all scales ( долу в дясно до зъбното колело има една иконка с лампичка, когато се кликне на нея тя светва и означава че сме включили този режим на работа и обратното кликайки още веднъж спираме този режим на работа.) .
При така включен режим на работа на AutoCAD вие виждате във Layout - a абсолютно всички обекти независимо от избрания мащаб за viewport- a - снимка 4

Не искам да навлизам в още подробности тъй като има цял модул за плотирането в AutoCAD, там ще видите всичко кеото е необходимо за да разберете как се работи с Layouts и viewport - тите в тях,
*Каква е зависимостта между анотативните мащаби и мащаба на viewport - a. *Кой обект се вижда, но не се разпечатва, *Кога един обект не се вижда съответно не се и разпечатва.
Така че съвета ми е изледайте внимателно модула за плотиране, като препоръката ми е да се върнете и на модул 3 Анотативни мащаби от настоящия курс, защото плотирането (ползването на Layout и Viewport ) са много тясно свързани с анотативните мащаби. Четете и темите под уроците там, защото има доста често срещани проблеми, които са коментирани и най - вероятно коментарите ще помогнат допълнително за осмислянето на анотативните мащаби и плотирането.
Надявам се да съм бил полезен с отговора и на този етап съм дал само като идея от къде идва проблема, а вече в модула за който споменавам по - горе ще доизясни допълнително казуса.
Много благодаря за изчерпателния отговор. Пробвах веднага с анотативния мащаб в Layout-a и се получи. Много е мотивиращо да научавам все повече за страхотните възможности на софтуера, с който само съм си мислела, че мога да работя..., а на практика съм го измъчвала :)