Защо не ми се получават референтните точки?
Здравейте Някой може ли да ми каже защо не се получава ,следвам стъпките по задаването на референтна точка от видеото ,но не се получава .с Аутокад 2016 съм

Здравей, Hristiansen.
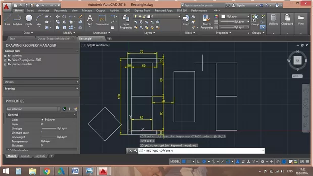
Това което виждам на screenshot - a, който си показал е че си задал стойност @-10,10 във видеото се въвеждат @-10,-10 координати. може от там да идва грешката макар и да е малко вероятно. По скоро проблемът може да идва от настройките за това как да се въвеждат координатите.В случая -10 -10 трябва да се локални координати спрямо референтно избраната точка, ти въвеждаш тези координати с @-10,-10 което зависи от настроката може да не са точно локалните координати.
Съвета ми е да прегледаш това видео тук:
за да видиш основната идея на настройките и самото въвеждане на локални и абсолютни координати.
И вече след това да прегледаш урок над този въпорс и да повториш показаното вече уверен че въвеждаш правилните координати.
Така че препоръката ми е да пргеледаш видеото за въвеждането на координати, т.к. ще ти е полезно не само в този случай ами и при доста други казуси.
Определено при използването на координати често се допускат пропуски ИЛИ пък друго възможно място на което може да е станало объркването е избора на инструмента с който "отксчаш" от дадена точка.
много благодаря за отговора ,вече ми е ясно
Моля!
Супер е че вече всичко е изяснено!
Здравейте и аз имам проблем с референтните точки, но не ми отваря видеото.