Защо 2D чертеж, при промяна на гледната точка, получава на места и трета равнина още преди да съм започнала работа в 3D?
Защо когато отворих мой план, чертан в 2D, след като промених ориентацията му, се появиха нещо като стени на определени места? Виждам във видеото, че няма такъв проблем и когато се извърти чертежа от поглед отгоре на страничен поглед, нещата си остават в същата равнина. Може би не всеки 2D чертеж става за подложка за работа в 3D?


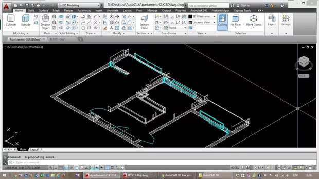
Здравей, това което виждам на снимката е, че имаш някои обекти които най - вероятно имат Z координата.Изцяло ти ли си изчертала чертежа или е бил изпращан и на други хора - може те да са направили несъзнателно някой друг обект със Z кооридната.Ако подложката е вкарана от друг Software има вероятност тези 3D обекти да са дошли при Import - a в AutoCAD.
Здравей, чертежа съм чертала сама изцяло в 2D /не съм задавала Z координата, поне не съзнателно.../, не съм го изпращала на други хора и бях много учудена като видях резултата при промяната на погледа. За всеки случай изтрих ненужните неща, за да не би да пречат, но пак изглежда по същия начин. А обекта е чертан изцяло с line и arc и не би трябвало да получава и Z координата....
Изчертах наново всички стени с Rectangle, изтрих всички линии чертани с line и нещата се получиха, но принципно не мога да си обясня защо обикновените линии са получили и Z координата.
Здравей, вариант за получаване на Elevation или за Z координати, на дадения обекти е ако преди това е имало обект който е бил със Z кордината и съответно си се пирлепила към него с OSNAP - това се случва когато системната променлива Osnapz е със стойност 0.
Ето тук ще споделя две теми в които има точно дискусия относно обекти които имат Z кординати, в които съм дал кратък пример и съвет за справяне с този тип казузи.
Какво да правя с обектите със Z координата_1
Какво да правя с обектите със Z координата_2
Друг вариант за това както се е случило e при Import от друг вид software, както споменах в горния коментар.
Надявам се да съм бил полезен с отговора и да съм те насочил на правилното място.
Не можах да оправя проблема по нито един от посочените начини. Z пише, че е 0 и въпреки това някои линии продължават да имат височина. Явно съм започнала работата върху "странен" чертеж, защото отворих други мои чертежи, с които няма такъв проблем.
Опитайте на ново да зададете стойност на Z=0 и след това потвърдете с Enter.
сблъсквала съм се с този проблем - справянето - избирам си всички обекти и им задавам височина 0.