Безплатно! Онлайн събитие: От претоварване с информация до фокус и структура с Gemini & NotebookLM Регистрация тук.
Въпрос към урок: Създаване на прозорци в 3D
от курс: AutoCAD Формула 3D
Всички прозорци
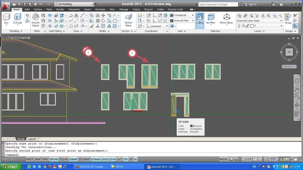
По един и същи начин се получиха всичките стъкла.Опитах се да променя прозрачността,не се оправиха.Проверих и TRANSPARENCYDISPLAY , единица е.


Разбира се, че стъклата ще са едни и същи, когато са в един слой . Колкото до прозрачността, тя сякаш е проблем и в готовия файл, защото я няма. А във видеото я има. Така или иначе, в този урок, за прозрачност се говори между другото. В последния модул има много подробности за прозрачност, включително и за стъкла.
Вашият отговор
Запиши се в Аула
Ако вече имаш регистрация влез оттук