Безплатно! Онлайн събитие: От претоварване с информация до фокус и структура с Gemini & NotebookLM Регистрация тук.
Въпрос към урок: Прехвърляне на стилове и палета с инструменти
от курс: AutoCAD Формула
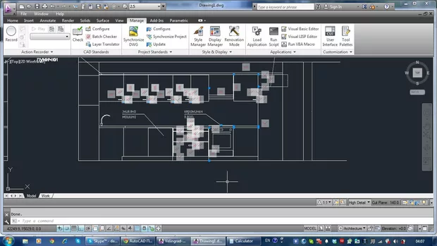
Някой може ли да ми каже откъде да разкарам тези квадратчета. Не знам откъде се включиха

Здравей,
доколкото виждам от снимката чертежът е параметрично изчертан с геометрични ограничения ( по - големи подробности за тях има в курса - AUTOCAD БИБЛИОТЕКИ динамични блокове ) ... но на въпроса : 1. Ако искаш да премахнеш тези ограничения селектирай всички обекти отиди в раздела Parametric там в Мanage цъкни на Delete Constrains - по този начин ще изтриеш ограниченията и ще се махнат квадратчетата. 2. Ако искаш само да скриеш квадратчетата които показват геометричните ограничения за всеки обект отиди на раздела Parametric и там в Geometric цъкни на Hide All.
Надявам се да съм бил полезен.
Вашият отговор
Запиши се в Аула
Ако вече имаш регистрация влез оттук