Защо Properties палетата не отчита селектирания обект?
Здравейте, при опита ми да въведа височина на текста в "палетата" Properties менюто TEXT липсва и не мога да продължа. С AotoCAD 2014 съм. Предварително благодаря!!!


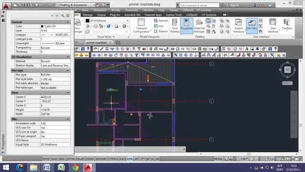
Здравей, въпреки че обекта ( текста ) изглежда маркиран, според мен не е маркиран ( или поне не както трябва ) тъй като горе в properties няма обозначение за това какъв обект е маркиран дори не пише No selection, което ме озадачи още повече, но същевременно с това данни който стоя на картинката ( в палетата properties ) се показват именно когато не е селектирано нищо.НО пробвай с няколко настройки, като отвориш този файл в отделен AutoCAD ( да няма повече табове тъй като в момента виждам че е отворен с още няколко ) ето и настройките: PICKFIRST = 1; PICKADD = 2; PICKSTYLE = 1; FILEDIA =1; PICKSTYLE = 1 ( давам настройки за селекция на обекти, защото мисля че именно там е проблема ).След направа на настройките селектирай този текст и в палетата трябва да ти се покаже това което е показано на снимката.Надявам се да съм бил полезен.Ако се получи пиши, ако не пак пиши :).
Благодаря за отговора.Ето това става след направените настройки. Пак има някакъв проблем. :(
А случайно да си uninstall - вал Autodesk 360 от control panel ( Control Panel\Programs\Programs and Features ) след инсталацията на Autocad ? Дори и да не си нещо според мен е станало с windows registry - то ( така мисля след като видях че в properties палетата няма никаква информация при селектиран обект ).Препоръчвам от control panel - а ( Control Panel\Programs\Programs and Features ) да отидеш на първо на Autodesk 360 и да дадеш repair, ако не стане пак Control Panel\Programs\Programs and Features отиваш на Autocad 2014 и да дадеш на бутона Uninstal/Change след което ще ти излене прозореца показан на картинката - на него дай на Repair or Reinstal.Надявам се да стане. В много много краен случай Preinstal ( инасталация наново ), като инсталираш и Autodesk 360 и след това не го uninstal ( защото може това да е причината понягока за този проблем).Това са ми вариантите за този проблем.Дано да се оправи без преинсталация
Много благодаря ще пробвам. Поздрави!!!
С Reinstal на AutoCAD нещата се получиха.Много благодаря!!!
За нищо, радвам се че не се е стигнало до цялостно преинсталиране :)
Здравей Димитър.. Видях че ползваш Cadprofi. Коя версия е това ?
Какъв плеър да изтегля за таблет