Как се прави заобляне на свързани фигури в общ контур?
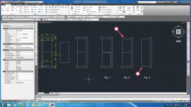
Направих упражнението към урок 5 (Fillet, Chamfer Ofset). Всичко стана добре, докато не реших да заобля и двете части на седалката на дивана от примера, така,че да изглежда като на фиг. 1. Те са два правоъгълника от полилиния. Започнах с командата Fillet и на първото заобляне - в горния край на дивана изчезна прилежащият подлакътник (фиг. 2). На второто заобляне в противоположния край изчезна и другият подлакътник, а седалката от две части стана една (фиг.3). Пробвах като започнах и от средата - тогава на второто заобляне изчезва останалата част от седалката. Може ли да се направи желаното заобляне на комплекс от фигури с команда Fillet ?


Здравей, може да се направи желаното заобляне, проблема ти и два от там че подлакътника и седалката на дивана са два отделни обекта ( правоъгълници - който представляват затворени полилинии ), когато тръгнеш да избираш линиите които трябва да се заоблят ти избираш едната права от подлакътника, а другата от седалката и ето го и проблема от там AutoCAD ти заобля тези две линии премахвайки ненужните елементи на полилинията ( тази на подлакътника ), ЗАТОВА трябва да се увериш че избираш прави само от седалката, когато си искаш да заоблиш ръбовете.Как да си сигурен кое точно избираш, когато имаш препокриващи се обекти ( седалката и подлакътника в случая ) може да прочетеш внимателно тази статия от блога на инж.Иван Цукев - https://blog.tsukev.com/autocad-izbor-na-obekti.html , както и да изгледаш и приложения видео клип.Надявам се да съм бил полезен с отговора.
Благодаря, става перфектно и по двата начина. Когато обаче и двете страни на ъгъла, който искам да заобля са "под" други отсечки, е възможно да се селектира само със "selection cycling", или поне аз успях само така да го направя.
Ами виж да не би да си пропуснал отметките в Options - Selection - Selection Preview и двете отметки - показаните в позиция 1 на качената снимка.Тогава при активна команда ( или неактивна ) с Shift + Space минавайки над препокритите обекти може да ги превключваш.
Еким, виж примера на Мирослав(първи коментар) Fillet-Polyline-R-5(например радиус 5) и кликни върху една от линиите на правоъгълника.