Как да вмъкна Hyperlink в Properties менюто ?
Здравейте !!!! Искам да попитам как мога да си вмъкна опцията за hyperlink в properties менюто ! Пробвах през USER interface, но поради някаква причина не успях ! Благодаря предварително !!!
Здравей, първо кой AutoCAD ползваш.
За кое Properties меню говориш Properties палетата ( Ctrl + 1 ) или за Quick Properties менюто което изкача до обекта когато го селектираш ?
1. Properties палетата.
Ако е първия вариант следва при селектиране на обект ( блок например ) да си ти стой в палетата ( снимка 1 позиция 1 )

ако не си селектирал обект няма да имаш Hyperlink ( снимка 2 позиция 1 ) поради причината че нямаш обект с който да го вържеш този Hyperlink реално.

2. Quick Properties.
Ако е втория вариант тогава следва да го добавиш от CUI.
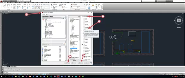
Първо трябва да си включил показването на това меню (Ctrl + Shift + P ) като селектираш обект следва да ти се появи менюто ( снимка 3 позиция 1 ) отиди на иконката за CUI ( снимка 3 позиция 2 ) и кликни на нея.

Следва да ти се отвори прозореца на CUI ( снимка 4 позиция 1 ), като от там в раздела General ( снимка 4 позиция 2 ), сложи отметка на Hyperlink ( снимка 4 позиция 3 ), след това затвори с Apply и ОК ( снимка 4 позиция 4 и 5 )

Следва да виждаме поле за Hyperlink ( снимка 5 позиция 1 )

Благодаря Краси ще опитам стъпка по стъпка да го направя !
Иначе използвам AutoCAD 2017, забравих да го спомена
относно ХиперЛинка. Сега го установих. Ако искам да го ползвам като линк, то трябва да маркирам блока (или просто курсора да е над него) и да натисна Ctrl+клик.
