Безплатно! Онлайн събитие: От претоварване с информация до фокус и структура с Gemini & NotebookLM Регистрация тук.
Въпрос към урок: Поставяне на покрив с Roof Tool и основни настройки на елемента покрив
от курс: Проектиране с ArchiCAD
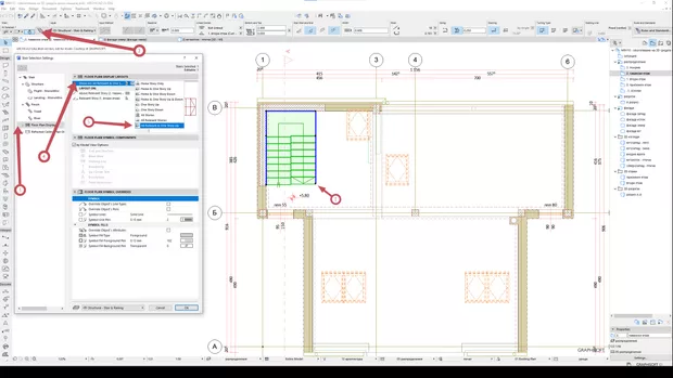
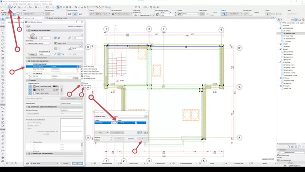
Защо не виждам стълбата на тавански етаж
Здравейте, изчертала съм стълбата както е в урока, но не я виждам на тавански етаж. Къде да търся грешката? С версия 22 съм. Също така, като изчертая покрива, той се показва частично и на втори етаж. Не мога да си обясня защо. Благодаря

Г-жо Баракова, аз също не виждам на таванския етаж стълбата. Вие как постъпихте? От показаните примери на г-н М.Проев не става ясно ? Моля споделете.
Вашият отговор
Запиши се в Аула
Ако вече имаш регистрация влез оттук

