Безплатно! Онлайн събитие: От претоварване с информация до фокус и структура с Gemini & NotebookLM Регистрация тук.
Въпрос към урок: Други помощници - Marquee Tool, Find & Select & Status bar
от курс: Проектиране с ArchiCAD
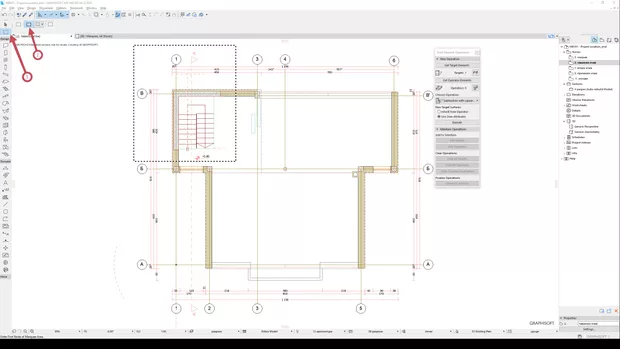
Защо с Marque tool не се показва всичко в 3д изгледа, а само два от етажите ?
Защо след като маркирам територията, която искам да се покаже в 3Д изглед с marquee tool, се показва само първи и втори етаж, а приземния етаж не. Защо се получава така ?
Ако сте избрали правилния Selection method - All Floors на Marquee tool (позиция 2 долу на картинката), би трябвало да видите всичките нива след като натиснете F5 в 3D прозореца.
Вашият отговор
Запиши се в Аула
Ако вече имаш регистрация влез оттук

