Безплатно! Онлайн събитие: От претоварване с информация до фокус и структура с Gemini & NotebookLM Регистрация тук.
Въпрос към урок: Поставяне на прозорци
от курс: Проектиране с ArchiCAD
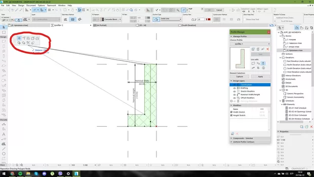
Как да добавя функцията offset edge,защото ми липсва.Имам offset all edges и още няколко.
"offset edge" е всъщност "move node", т.е. това което съм показал с 2

Вашият отговор
Запиши се в Аула
Ако вече имаш регистрация влез оттук
